OPEN OUR DOOR IN ANY DIRECTION
Click here and find our nearest store
We are working remotely due to the necessary measures to combat COVID-19. Schedule a virtual meeting here >

Land Livramento

3.000.000€


Livramento, Cascais


0
0
0
-
- m2
9480m2

Key information

PF16306

Sale

To demolish or rebuild

-

- m2

9480m2

0

0

0

-

F

-

-

Description

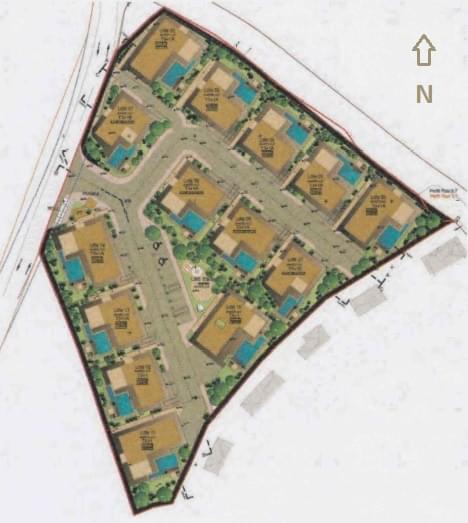
Plot of land of 9,480 sqm which currently has an unoccupied villa with 473 sqm of gross living area. There is an already approved project for the construction of a condominium of 13 detached single family villas. The property is for sale with this approved project but the licence is to be paid for by the future purchaser. The location is between a residential area and an area of green spaces.

Features

Location

Cascais

Cascais is a Portuguese village known for its bay of beaches, commerce and cosmopolitanism. Considered to be the most sophisticated destination in the Lisbon area, the palaces and the refined elegance of all buildings dominate. With the sea at your feet, Cascais can boast of having 7 golf courses, a casino, a marina and numerous leisure spaces. Just at 30 minutes from Lisbon and the international airport.

Porta da Frente Christie's

Porta da Frente Christie's is a real estate brokerage firm working in the market for two decades, focusing on the best properties and developments, whether for sale or lease. The company was selected by the prestigious Christie's International Real Estate brand to represent Portugal in the areas of Lisbon, Cascais, Oeiras and Alentejo. The main mission of the Porta da Frente Christie's is privileging a service of excellence to all our customers.