OUVREZ NOTRE PORTE DANS N'IMPORTE QUELLE DIRECTION
Cliquez ici et trouvez votre magasin le plus proche
Nous travaillons également à distance, afin de rester connecté à vous à tout moment. Planifiez une réunion virtuelle ici >
Recherche

PF23953, Quinta T5, Benavente

1.150.000€


, Benavente


5
6
3
422.0m2
20250m2

Information clé

PF23953

Vente

Ancien

2003

422.0m2

20250m2

5

6

3

C

-

Description

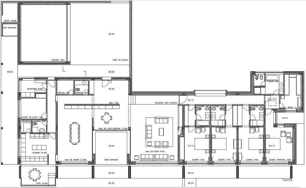
La propriété Quinta a une maison insérée dans une zone rurale/forestière, sur un terrain de forêt de chênes-lièges et de pinède, d'une superficie totale de 20 250 m².

La maison dispose de quatre chambres en suite, la suite parentale comprenant la chambre, une chambre pour vêtements, le dressing et la salle de bains avec baignoire d'hydromassage. L'espace du jour comprend un salon avec cheminée, une salle de lecture et une salle à manger, avec des ambiances séparées, mais dans un espace ouvert. Avec une cuisine entièrement équipée, cellier et coin repas donnant sur le jardin, deux toilettes, buanderie et salle de soutien. Le mur du fond du hall d'entrée est rempli d'armoires de rangement recouvertes de feuilles de chêne.

La maison s'intègre parfaitement dans le paysage grâce à sa dynamique architecturale, avec un design moderne et discret. Elle a une orientation privilégiée, où l'intimité des résidents et la lumière du jour sont préservées par l'introduction d'éléments verticaux et horizontaux. La maison, bâtie en 2003, reflète le niveau des matériaux et de la finition, de très bonne qualité, la créativité architecturale, qui à son tour est renforcée par de grandes baies vitrées en "Kambala" à double vitrage, des revêtements du sol en matériaux nobles, où le chêne français alterne avec le marbre de Vila Viçosa.

La propriété, en plus de la maison et du jardin environnant, avec un espace vert où les plantes indigènes sont exubérantes, sur une surface d'environ 1 135 m², possède également une forêt de liège et de pins qui s'étend vers le sud-est, dans un environnement d'une grande tranquillité, riche en une diversité de faune et de flore caractéristique de la région, et une superficie de forêt de 19 115 m².

La propriété, située à un peu plus de 50 km de Lisbonne, bénéficie d'un bon accès routier, via le pont Vasco da Gama (A12), et est également desservie par les autoroutes A33, A10 et A13, avec des routes de raccordement vers les côtes ouest, nord et sud du pays.

Dans les environs de la propriété, il y a deux terrains de golf, l'un à environ 2 km (Vila Nova de Stº Estêvão) et l'autre à 8 km (Ribagolfe).

Caractéristiques

Alarme

Chauffage central

Rangement

Baignoire

Barbecue

Cuisine équipée

Échappement

Le fourneau

Four

Frigo

Garage

Isolation sonore

Isolation thermique

Cheminée

Lave-vaisselle

Machine à laver

Piscine

Portail électrique

Armoires

Terrasse

Terrain de golf

Espaces verts

Pharmacie

Marché

Orientation solaire Sud

Vue sur la campagne

Vue du jardin

Porta da Frente Christie's

Porta da Frente Christie's est une société de courtage immobilier active sur le marché depuis deux décennies et axée sur les meilleures propriétés et les meilleurs développements, qu’ils soient à vendre ou à louer. La société a été sélectionnée par la prestigieuse marque Christie's International Real Estate pour représenter le Portugal dans les régions de Lisbonne, Cascais, Oeiras et Alentejo. La principale mission de Porta da Frente Christie's est de privilégier un service d'excellence à tous ses clients.