ABRA A NOSSA PORTA EM QUALQUER DIREÇÃO
Descubra aqui a loja mais próxima de si
Estamos a trabalhar remotamente devido às medidas necessárias para o combate ao COVID-19. Agende uma reunião virtual aqui >
Pesquisa

PF22752, Duplex T2, Lisboa

2.200€


Arroios, Lisboa


2
2
0
-
74.49m2
- m2

Informação

PF22752

Arrendar

Novo

-

74.49m2

- m2

2

2

0

-

B-

-

-

Descrição

APARTAMENTO T2 COM MÓVEIS NO INTENDENTE
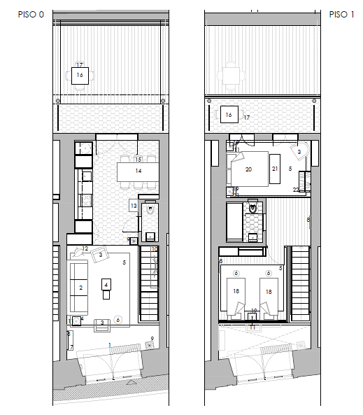
Apartamento T2 mobilado localizado no Largo do Intendente com 74,49m2 de área útil. Com áreas divididas em:

Piso 0

- Hall de entrada com escadas de acesso ao Piso 1
- Sala de estar
- Wc social
- Cozinha totalmente equipada e zona de refeição
- Jardim privativo
Piso 1
- Hall de acesso aos quartos
- Quarto em mezanine com roupeiro
- Wc completo
- Quarto com saída para ampla varanda

Todas as divisões contam com janelas de caixilharia dupla e ar condicionado. Apartamento em edifício novo com zona de jardim comum.
Situado no Largo do Intendente próximo a variada rede de transporte via autocarro e metro, comércio e serviços.
O apartamento situa-se a menos de 5 min a pé do metro do Intendente e a 15min de carro do aeroporto de Lisboa.

Características

Ar Condicionado

Elevador

Exaustor

Fogão

Forno

Frigorífico

Roupeiros

Vidros Duplos

Centro da Cidade

Farmácia

Transportes Públicos

Vista para Cidade

Localização

Lisboa

A capital Portuguesa é onde tudo acontece: desde os seus bairros históricos às novas ruas cheias de vida, Lisboa é a cidade que nunca pára de surpreender. Pode passear por avenidas icónicas como a Liberdade ou comer os deliciosos pastéis de Belém, sem esquecer as opções culturais e inúmeros museus da cidade. Um oásis urbano que serve o amante da calçada portuguesa e o curioso pela modernidade.

Porta da Frente Christie's

A Porta da Frente Christie’s é uma empresa de mediação imobiliária que trabalha no mercado há mais de duas décadas, focando-se nos melhores imóveis e empreendimentos, quer para venda quer para arrendamento. A empresa foi selecionada pela prestigiada marca Christie’s International Real Estate para representar Portugal, nas zonas de Lisboa, Cascais, Oeiras e Alentejo. A principal missão da Porta da Frente Christie’s é privilegiar um serviço de excelência a todos os nossos clientes.