ABRA A NOSSA PORTA EM QUALQUER DIREÇÃO
Descubra aqui a loja mais próxima de si
Estamos a trabalhar remotamente devido às medidas necessárias para o combate ao COVID-19. Agende uma reunião virtual aqui >
Pesquisa

PF24260, Apartamento T1, Lisboa

365.000€


Arroios, Lisboa


1
2
1
-
81.4m2
- m2

Informação

PF24260

Comprar

Usado

2018

81.4m2

- m2

1

2

1

-

B

-

-

Descrição

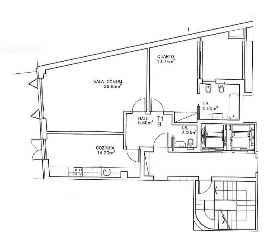
Apartamento T1 construído em 2018 com 81,40m2 em Arroios, Lisboa.

Prédio de placa com 2 elevadores e painéis solares.

Apartamento constituído por:
- Hall de entrada com 5,8m2;
- Sala com 26,85m2;
- Cozinha totalmente equipada com 14,20m2
- Suite com 13,74m2 com acesso a varanda e casa de banho com 5,5m2;
- Varanda com 7,6m2;
- Casa de banho de serviço com 2 m2;
- Arrecadação com 12,25m2;
- Estacionamento para 1 viatura.

Apartamento com boas áreas e com muita luz.

Este apartamento apresenta uma excelente localização perto de transportes, comércio e todo o tipo de serviços.

Venha conhecer a sua próxima casa, não perca esta oportunidade!

Áreas

Cozinha: 14.2 m2

Hall: 5.8 m2

Sala: 26.85 m2

Arrecadação: 12.25 m2

Quarto: 13.74 m2

Casa de Banho: 5.5 m2

Casa de Banho: 2.0 m2

Varanda: 7.6 m2

Estacionamento: 1.0 m2

Características

Ar Condicionado

Arrecadação

Banheira

Cozinha Equipada

Elevador

Garagem

Musica ambiente

Painéis fotovoltaicos

Porta Alta Segurança

Roupeiros

Banco

Bombeiros

Escola

Farmácia

Hospital

Mercado

Praça Táxis

Transportes Públicos

Vista para Cidade

Localização

Lisboa

A capital Portuguesa é onde tudo acontece: desde os seus bairros históricos às novas ruas cheias de vida, Lisboa é a cidade que nunca pára de surpreender. Pode passear por avenidas icónicas como a Liberdade ou comer os deliciosos pastéis de Belém, sem esquecer as opções culturais e inúmeros museus da cidade. Um oásis urbano que serve o amante da calçada portuguesa e o curioso pela modernidade.

Porta da Frente Christie's

A Porta da Frente Christie’s é uma empresa de mediação imobiliária que trabalha no mercado há mais de duas décadas, focando-se nos melhores imóveis e empreendimentos, quer para venda quer para arrendamento. A empresa foi selecionada pela prestigiada marca Christie’s International Real Estate para representar Portugal, nas zonas de Lisboa, Cascais, Oeiras e Alentejo. A principal missão da Porta da Frente Christie’s é privilegiar um serviço de excelência a todos os nossos clientes.